高屋町の新築建売住宅(高屋町第7分譲2号棟)
- 価格
- 2,180万円
- 種別
- 新築戸建
- 間取
- 4LDK
-
- 所在地
- 岡山県井原市高屋町4丁目
- 交通
- 井原鉄道 子守唄の里高屋駅 徒歩6分
物件詳細
| 築年月 | 2025/11 | 新築/中古 | 新築・未入居 |
|---|---|---|---|
| 面積 | 計測方式 | ||
| バルコニー | 向き | ||
| 建物階数 | 地上2階 | 部屋階数 | |
| 建物構造 | 木造 | ||
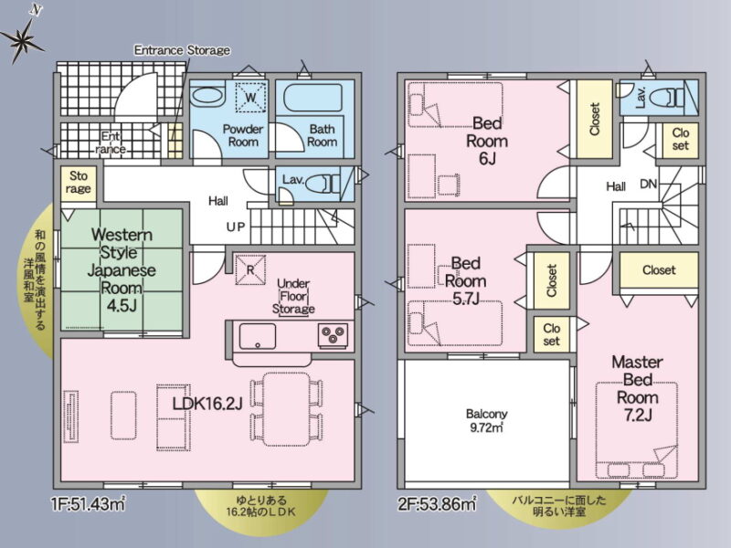
| 敷地全体面積 | 延べ床面積 | 105.29m² | |
| 間取内容 | LDK 16.2畳 洋室 6畳 洋室 7.2畳 洋室 5.7畳 和室 4.5畳 | ||
| 駐車場 | 取引態様 | 仲介 | |
| 引渡/入居時期 | 相談 | 現況 | |
| 地目 | 宅地 | 用途地域 | 第一種住居地域 |
| 都市計画 | 非線引き区域 | 地勢 | |
| 土地面積 | 147.94m² | 土地面積計測方式 | |
| 建ぺい率 | 60% | 容積率 | 200% |
| 土地権利 | 所有権 | 接道状況 | |
| 周辺環境 | 学区:高屋小学校・高屋中学校 | ||
| 設備・条件 | 土地面積/147.94㎡(44.75坪) 建物面積/1F:51.43㎡ 2F:53.86㎡ (延床面積105.29㎡) 接道状況/北側公道(42条1項1号道路)幅員6.0m 施行会社/㈱アーネストワン 備考/オール電化住宅(エコキュート)・日当たり、採光良好 設備/公共水道、中国電力・オール電化・公共下水 物件の特徴/システムキッチン・対面キッチン・カウンターキッチン・IHクッキングヒーター・浄水器・浴室乾燥機・シャンプードレッサー・洗浄便座・トイレ2か所・モニター付きインターホン・防犯カメラ・人感センサーライト・ディンプルキー・複層ガラス・オール電化・各室収納スペース・床下収納・24時間換気システム・火災警報器(報知器)・フローリング・和室付き・バルコニー・ルーフバルコニー・給湯・3口以上コンロ |
||
| 物件番号 | 0114 | ||
| 特記事項 | ●補助金制度有り ●移住者住宅新築等補助金対象物件(100万円) ※井原市に移住を目的に購入の場合(詳細は井原市のHPをご確認ください) ●当該物件について、手数料無料サービスいたしますので、お気軽にお問合せください(当社仲介の場合) |
||
Loading...
※物件掲載内容と現況に相違がある場合は現況を優先と致します。






